Les services de la Résidence Ti Ar MenezÀ Quimper
La résidence en chiffres
60 studios T1
4 studios
Accessibles aux personnes en situation de handicap, et aménagés en conséquence.
1 parking privé
Réservé aux locataires et à leurs visiteurs.
1 salle conviviale
Avec cuisine aménagée
1 buanderie
1 local vélo
L'équipement de chaque studio
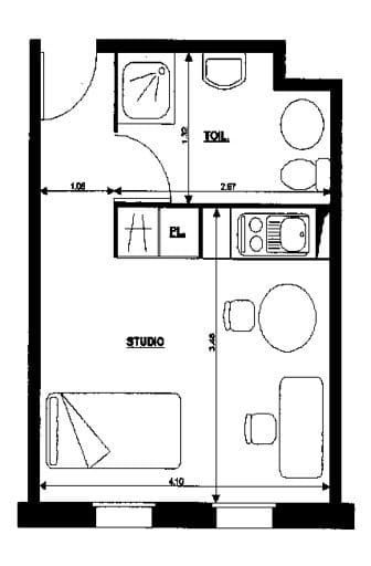
La résidence Ti Ar Menez met à votre disposition des studios T1 de 21m².
Chaque studio T1 bis est équipé :
D’un séjour-chambre
Coin cuisine
D’un coin cuisine équipée avec évier, plaques vitrocéramiques, réfrigérateur avec freezer, table et placards.
Salle de bain
D’une salle de bain avec meuble lavabo, douche (rideau de douche à prévoir) et WC.
Placards aménagé
D’un placard aménagé avec penderie et étagères.
Couchages
D’un couchage 2 places (sauf dans deux logements pour les personnes en situation de handicap où le couchage se limite à 1 place)
Chevet, bureau, bibliothèque et chaises
D’un chevet, d’un bureau, d’une bibliothèque et de deux chaises.
De prises TV
Wifi
Du chauffage collectif
Des services pratiques et ludiques
La résidence Ti Ar Menez vous propose également un large éventail de services annexes :
Entrées contrôlées par un système de digicode.
Machine à laver et sèche linge accessibles 24/24. Prévoyez votre lessive. Lavage 2,5€ / Le séchage est gratuit.
Boite à lire
Agents de nuit afin d’assurer la sécurisation des bâtiments et des personnes

Homme de maintenance qui intervient à la demande des jeunes pour tout souci rencontrés dans les logements
Jusqu’à 1h du matin :
Ordinateur avec accès internet, photocopieuse et imprimante accessibles tous les jours
Salle conviviale avec baby foot et cuisine aménagée
Nous restons à votre disposition pour toute intervention de maintenance dans les studios, et pour vous aider dans les aspects pratiques de la vie quotidienne (santé, culture, logement…).
Contact et horaires d’ouverture
En dehors de ces horaires, vous pouvez nous joindre au
Téléchargez votre demande de logement
Si vous avez des questions supplémentaires sur les APL, le processus d’inscription… Consultez notre Foire aux questions.