Les services de la Résidence Colverts
La résidence en chiffres
80 studios T1 et 8 T1 bis
2 studios
Accessibles aux personnes à mobilité réduite, et aménagés en conséquence.
Salle conviviale avec cuisine aménagée
1 grand parking couvert
Avec barrière, réservé aux locataires et à leurs visiteurs.
1 salle de fitness
1 buanderie
1 salle informatique
Avec imprimante et photocopieuse à disposition
1 local vélo
L'équipement de chaque studio
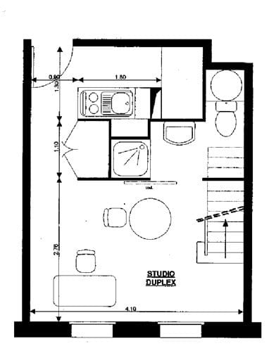
La résidence Les Colverts met à votre disposition des studios T1 (21m²) et des studios T1 bis (30m²).
Chaque studio est équipé :
D’un séjour-chambre.
D’un coin cuisine équipée avec évier, plaques électriques, réfrigérateur avec freezer, table et placards.
D’une salle de bain avec lavabo, cabine de douche et WC.
D’un placard aménagé avec penderie et étagères.
D’un couchage en 140 pour les T1, de deux couchages en 90 pour les T1 bis et d’un couchage en 90 pour les studios pour personne à mobilité réduite.
D’un chevet, d’un bureau, d’une bibliothèque et de deux chaises.
De prises TV et Internet.
Du chauffage collectif.
Des services pratiques et ludiques
La résidence Les Colverts vous propose également un large éventail de prestations annexes :
Deux machines à laver (lessive non fournie) et deux sèche-linges accessibles 24/24. Prévoyez votre lessive. Lavage 2,5 € / Le séchage est gratuit.
Jusqu’à 1h du matin :
Salle conviviale et cuisine aménagée.
Photocopieuse, imprimante et relieuse accessibles
billard
Salle de fitness
Accès aux journaux et revues
Boite à lire
Agents de nuit afin d’assurer la sécurisation des bâtiments et des personnes

Homme de maintenance qui intervient à la demande des jeunes pour tout souci rencontrés dans les logements
Nous restons à votre disposition pour toute intervention de maintenance dans les studios, et pour vous aider dans les aspects pratiques de la vie quotidienne (santé, culture, logement…).
Contact et horaires d’ouverture
Mardi : réunion d’équipe le matin et 14h00 – 18h00
En dehors de ces horaires, vous pouvez nous joindre au numéro indiqué ci-dessus
Téléchargez votre demande de logement
Si vous avez des questions supplémentaires sur les APL, le processus d’inscription… Consultez notre Foire aux questions.